Herttoniemi, Helsinki
Niittaajankatu 5 B
- Water rate €27/person/month
- 1 bedroom, 41 m²
- Rented
- 4/7 , has elevator
- Herttoniemi, HelsinkiShow in map
Rental home near Herttoniemi metro
Cosy 1br home with a private sauna
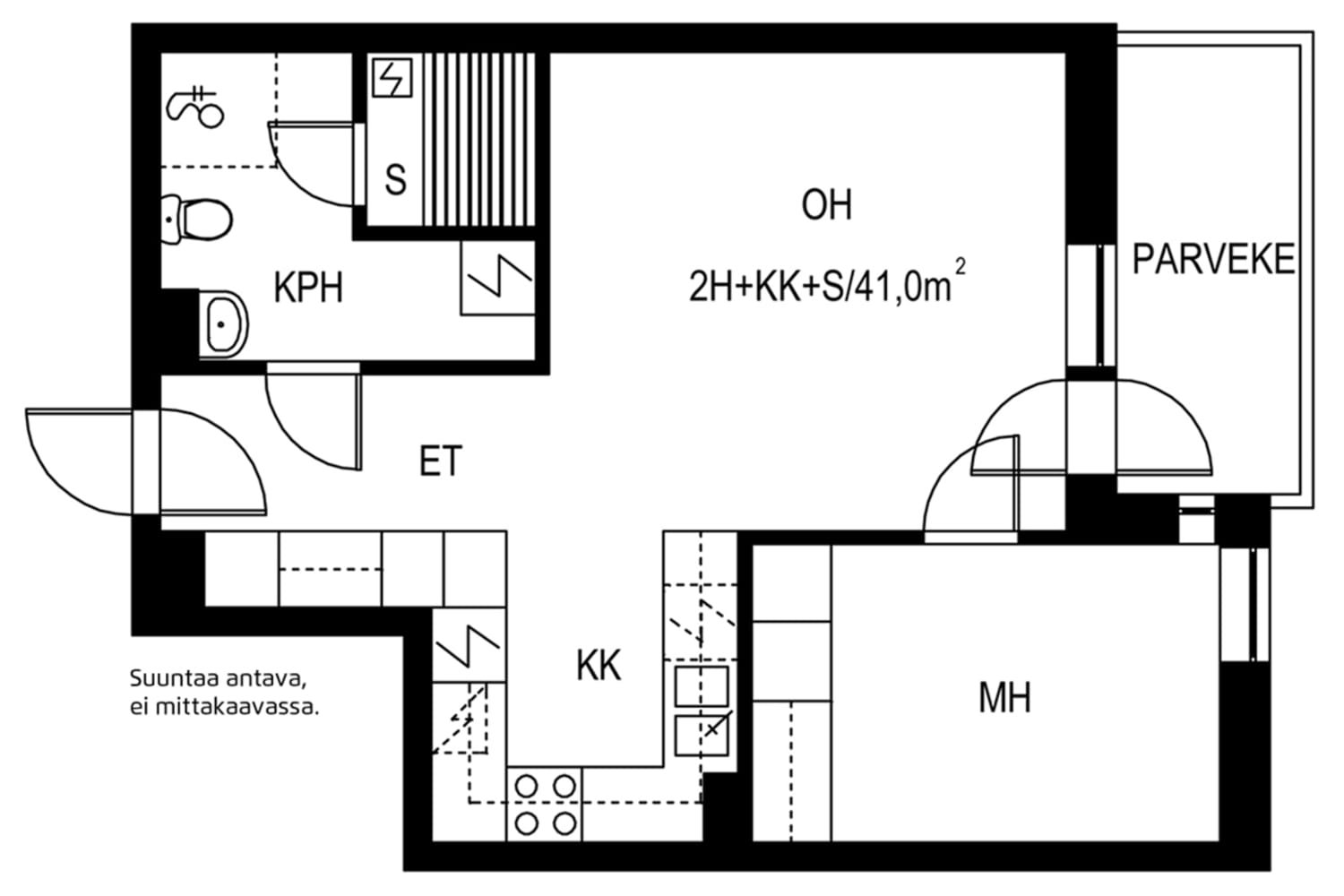
The layout of this one-bedroom home is clearly functional: the kitchen and living room combine into a cosy living space with access to a glazed balcony. The home is crowned by its private sauna, where you can relax in the warmth whenever it suits you. The bathroom also includes space and connections for a washing machine.
There are ample cupboards both in the hallway and the bedroom.
Could this be your new rental home? You are welcome to explore it in person!
English translation generated with AI.
Included in rent
Property's rules
Address
Living area
41 m²
Apartment type
1 bedroom + kitchenette + sauna
Floor
4/7
Elevator
Yes
Sauna
Yes
Balcony
Glazed balcony
Construction year
2001
TV-system
Cable
Available
Rented
Asset limitations
No
Rent
Rent security
€0, (companies min. one month's rent)
Home insurance
Mandatory, not included in rent
Water rate
€27/person/month
Electric bill
The tenant makes an electricity agreement with the electricity supplier.
Broadband
The rent includes a 50 M broadband connection. Additional speeds are available at a discounted price by contacting the operator Telia.
Pets allowed
Yes
Non-smoking building
No
Fridge type
Fridge freezer
Hob type
Ceramic
Dishwasher
Connections
Washing machine connections
Supply and drain
Energy class
E
Sustainability report
Common areas
Drying room, Air-raid shelter, Attic or cellar or storage room, Outdoor storage room, Baby carriage storage room
Parking spaces
More info asiakaspalvelu@kimin.fi
Not included in rentService Manager
Milla Anttila
Indoor maintenance
SATO House Expert
Maintenance company
Kimin kiinteistöpalvelut/K. Fogelberg Oy, Paasivaarankatu 2, 00810, HELSINKIhttps://www.kimin.fi/
Air-raid shelter
Yes
Rescue plan
Security deposit €0
The security deposit for almost all SATO homes is €0 – which means you can use the money you save for something else like decorating your new home!
Telia broadband
The rent includes Telia 50 M internet connection and, if necessary, you can also increase the speed at a discount price.
Pets allowed
Pets are important family members and warmly welcome as residents in almost all SATO homes.
Available apartments from the same building
Similar rental apartments in these neighbourhoods
Looking for a home in this area? Create a search alert and be the first to hear about newly available apartments!
Create a search alert to receive email notifications whenever homes matching your criteria become available. You can set up one or several alerts, and if you like, share them with your friends.