Skip to main content
Return to search results

Niittykumpu, Espoo

Green homes

Kappelirinne 4 B

  • Water rate by usage
  • 2 bedroom, 58.5 m²
  • Rented
  • 7/7, has elevator
  • Niittykumpu, EspooShow in map

Fresh homes in Niittykumpu

Schools, shops and Metro within walking distance

Kappelirinne 4 is a seven-storey new apartment building within walking distance from Niittykumpu Metro station. The building has 77 SATO RentalHomes from compact studios and 1 br. homes to 3-4 br. family apartments. The light-colored apartments are beautiful and timeless. All homes have open-plan kitchens that connect to the living areas. The floors are light oak laminate and the walls are painted white. The kitchens have light colored cabinets and they are equipped with a ceramic cooker, dishwasher and fridge-freezer or separate fridge and freezer. Studios have cooker/dishwasher combination. The bathroom walls and floors are tiled, and the washing machine has its own space. Studios have French balconies and bigger apartments have a glazed-in balcony.

The facilities of the brand-new house include functional common areas: the sauna department, the laundry and drying room and the storage rooms for bikes and baby carriages are located on the 1st and 2nd floor. Parking spaces are on the courtyard and in the garage under the building. The heat source of the property is geothermal heating, which uses solar energy stored in the ground.

Included in rent

Broadband, Telia 50 M
OmaSATO
Laundry room
Drying room
Apartment storage
Clubroom
Outdoor storage room
Baby carriage storage room

With surcharge

Parking space, 10 available
Communal sauna
Read more about customer benefits

Property's rules

Pets allowed
Smoke-free apartment, balcony, yard
Grilling
  • Address

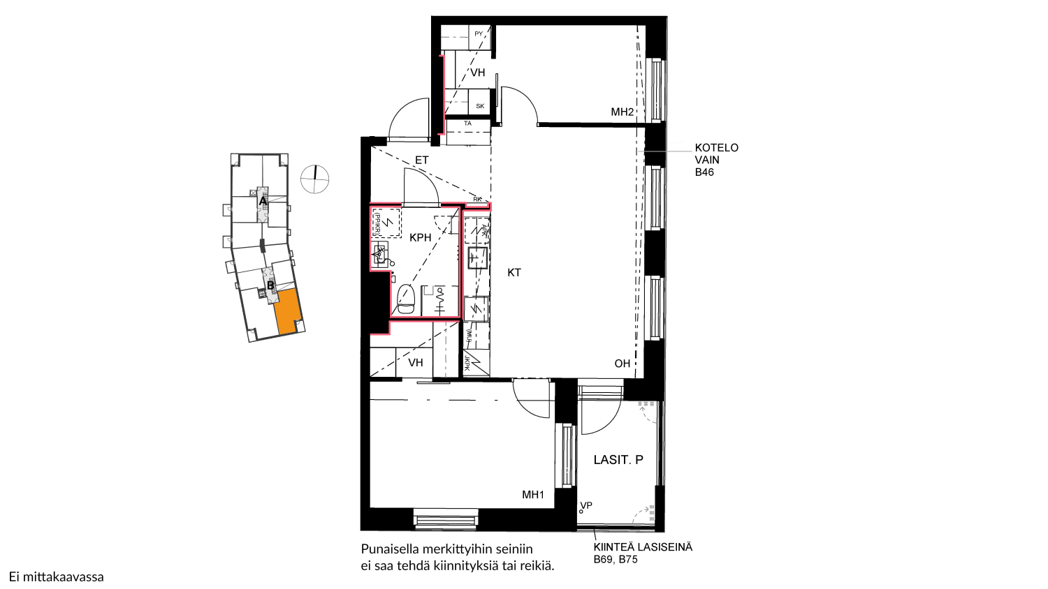
  • Living area

    58.5 m²

  • Apartment type

    2 bedroom + kitchenette

  • Floor

    7/7

  • Elevator

    Yes

  • Sauna

    No

  • Balcony

    Glazed balcony

  • Yard / terrace

    No

  • Construction year

    2021

  • TV-system

    Cable

  • Available

    Rented

  • Asset limitations

    No

  • Rent

  • Rent security

    €0, (companies min. one month's rent)

  • Home insurance

    Mandatory, not included in rent

  • Water rate

    By usage

  • Electric bill

    The tenant makes an electricity agreement with the electricity supplier.

  • Broadband

    The rent includes a 50 M broadband connection. Additional speeds are available at a discounted price by contacting the operator Telia.

  • Pets allowed

    Yes

  • Non-smoking building

    Yes

  • Hob type

    Ceramic

  • Dishwasher

    Yes

  • Washing machine connections

    Supply and drain

  • Energy class

    A

  • Heating system

    Geothermal heating

  • Sustainability report

  • Common areas

    Attic or cellar or storage room, Outdoor storage room, Communal sauna, Clubroom / common area, Baby carriage storage room, Laundry house, Drying room, Air-raid shelter

  • Parking spaces

    25 parking garage spaces
    18 rooftop parking spaces

    More info vikailmoitukset@rasanenoy.fi
    Not included in rent

  • Service Manager

    Adnana Husejnovic

  • Indoor maintenance

    SATO House Expert

  • Maintenance company

    Kiinteistöpalvelu Räsänen Oy, Olarinluoma 10, 02200, ESPOOhttps://www.rasanenoy.fi/

Go to real estate's page
Green homes

Green homes apartments have either geothermal heating or consumption based water billing, or both. Residents in these apartments also regularly receive information on emissions caused by housing, as well as guidance on more sustainable living.

Read more »

Available apartments from the same building

Similar rental apartments in these neighbourhoods

Looking for a home in this area? Create a search alert and be the first to hear about newly available apartments!

Create a search alert to receive email notifications whenever homes matching your criteria become available. You can set up one or several alerts, and if you like, share them with your friends.

Set up search alert