Skip to main content
Return to search results

Tapiola, Espoo

Kaskenkaatajantie 5 B

  • Water rate €27/person/month
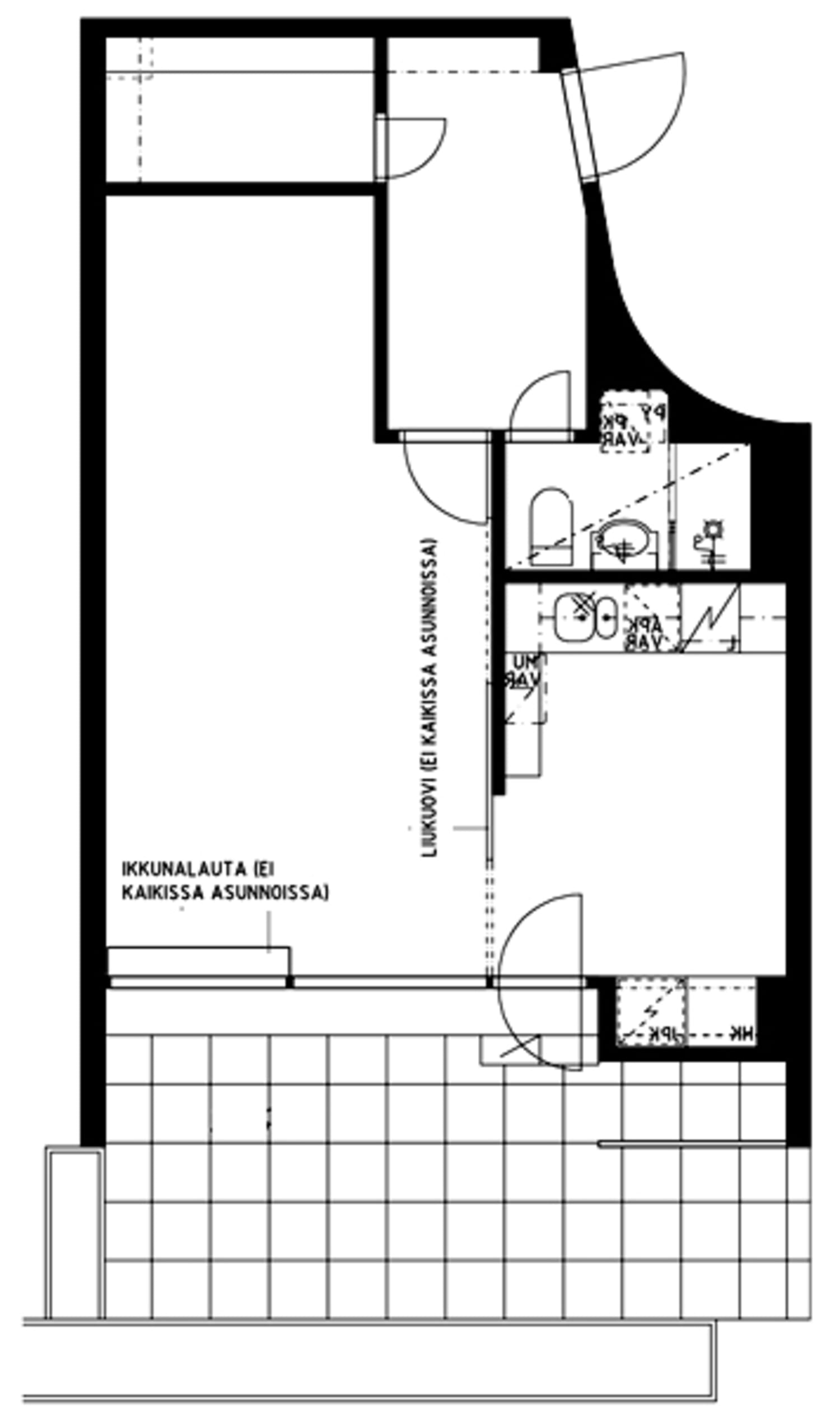
  • studio, 41 m²
  • Rented
  • 1/4
  • Tapiola, EspooShow in map

Lovely 1950s homes

Serene neighbourhood

This protected apartment building designed by Viljo Rewell occupies a prime location between the centre of Tapiola and the sports park.

The prime asset of the charming 1950s units are their large windows which seem to bring the green and lush grounds into the homes. The top-floor units have unique slanted ceilings which give the units the feel of an artist’s atelier. Except for the smallest studios, the units have balconies or ground-level terraces facing the evening sun and also feature floor-to-ceiling windows in the living rooms.

The grounds and common areas at the property were refurbished in 2011. Online reservations of the common areas can be made by using the link to the right.

 

Included in rent

Broadband, Telia 50 M
OmaSATO
Laundry room
Drying room
Apartment storage
Outdoor storage room

With surcharge

Parking space, 6 available
Communal sauna
Read more about customer benefits

Property's rules

Pets allowed
Grilling
  • Address

  • Living area

    41 m²

  • Apartment type

    studio + kitchen

  • Floor

    1/4

  • Elevator

    No

  • Sauna

    No

  • Yard / terrace

    Terrace

  • Construction year

    1958

  • Renovation year

    2010

  • TV-system

    Cable

  • Available

    Rented

  • Asset limitations

    No

  • Rent

  • Rent security

    €0, (companies min. one month's rent)

  • Home insurance

    Mandatory, not included in rent

  • Water rate

    €27/person/month

  • Electric bill

    The tenant makes an electricity agreement with the electricity supplier.

  • Broadband

    The rent includes a 50 M broadband connection. Additional speeds are available at a discounted price by contacting the operator Telia.

  • Pets allowed

    Yes

  • Non-smoking building

    No

  • Dishwasher

    Connections

  • Common areas

    Air-raid shelter, Attic or cellar or storage room, Outdoor storage room, Communal sauna, Drying room, Laundry house

  • Parking spaces

    17 uncovered parking spaces

    More info vikailmoitukset@rasanenoy.fi
    Not included in rent

  • Service Manager

    Mikael Vitikainen

  • Indoor maintenance

    SATO House Expert

  • Maintenance company

    Kiinteistöpalvelu Räsänen Oy, Olarinluoma 10, 02200, ESPOOhttps://www.rasanenoy.fi/

Go to real estate's page

Available apartments from the same building

Similar rental apartments in these neighbourhoods

Looking for a home in this area? Create a search alert and be the first to hear about newly available apartments!

Create a search alert to receive email notifications whenever homes matching your criteria become available. You can set up one or several alerts, and if you like, share them with your friends.

Set up search alert