Skip to main content
Return to search results

Kalasatama, Helsinki

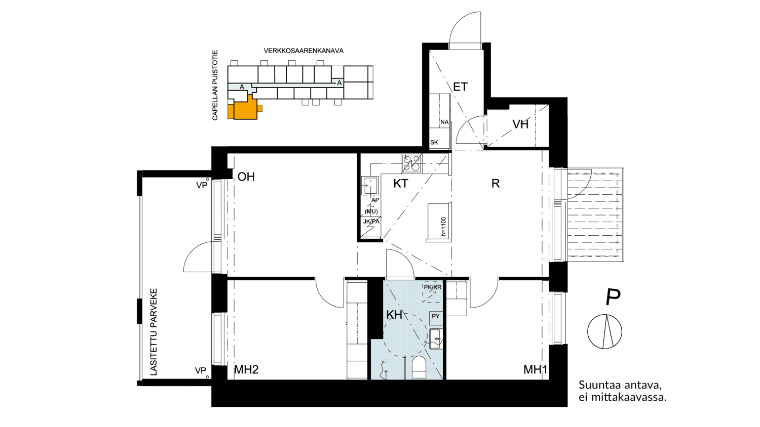
Capellan puistotie 21 A

Walking distance from Redi shopping centre

Modern rental homes in Verkkosaari

Capellan puistotie 21 is an eight-storey apartment building in a modern urban block by the Verkkosaari canal close to the seafront and Redi shopping centre. The building has 96 rental homes from efficient studios and 1-bedroom homes to 3-bedroom family apartments with a private sauna. The ground-floor apartments have a private garden area and the other homes either a French balcony or a glassed-in balcony. The laundry and drying room are on Floor 2 of the building and there is a shared sauna and clubroom section on the top floor. The car parking spaces are located in an underground parking facility underneath the block. There is a sheltered courtyard shared by the buildings in the middle of the block.

Included in rent

Broadband, Telia 50 M
OmaSATO
Laundry room

With surcharge

Parking space, 4 available
E-vehicle charging space
Communal sauna
Read more about customer benefits

  • Sauna

    No

  • Balcony

    Glazed balcony

  • Yard / terrace

    Yard and terrace

  • TV-system

    Cable

  • Fridge type

    Fridge freezer

  • Hob type

    Ceramic

  • Dishwasher

    Integrated

  • Washing machine connections

    Supply and drain

  • Available

    Rented

  • Asset limitations

    No

  • Rent

  • Rent security

    €0, (companies min. one month's rent)

  • Home insurance

    Mandatory, not included in rent

  • Water rate

    By usage

  • Electric bill

    The tenant makes an electricity agreement with the electricity supplier.

  • Broadband

    The rent includes a 50 M broadband connection. Additional speeds are available at a discounted price by contacting the operator Telia.

  • Pets allowed

    Yes

  • Non-smoking building

    Yes

Available apartments from the same building

Similar rental apartments in these neighbourhoods

Looking for a home in this area? Create a search alert and be the first to hear about newly available apartments!

Create a search alert to receive email notifications whenever homes matching your criteria become available. You can set up one or several alerts, and if you like, share them with your friends.

Set up search alert