Skip to main content
Return to search results

Lauttasaari, Helsinki

Lauttasaarentie 19 A

Spacious rental homes

Outstanding transport links and recreation routes

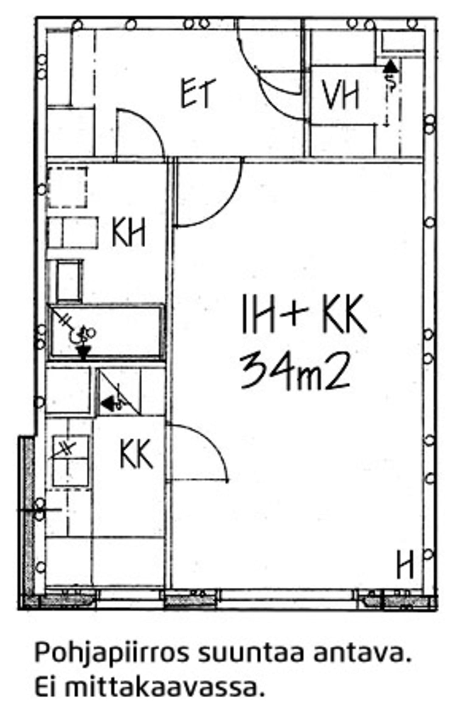
The homes at this building at the corner of Lauttasaarentie and Koillisväylä streets feature bright, clean layouts and spacious bathrooms. All homes also have balconies. The rental homes coming vacant are classified as four-star SATO QualityHomes.

Included in rent

Broadband, Telia 50 M
OmaSATO
Drying room

With surcharge

Parking space
Communal sauna
Read more about customer benefits

  • Sauna

    No

  • TV-system

    Cable

  • Fridge type

    Fridge freezer

  • Hob type

    Ceramic

  • Dishwasher

    Connections

  • Available

    Rented

  • Asset limitations

    No

  • Rent

  • Rent security

    €0, (companies min. one month's rent)

  • Home insurance

    Mandatory, not included in rent

  • Water rate

    €27/person/month

  • Electric bill

    The tenant makes an electricity agreement with the electricity supplier.

  • Broadband

    The rent includes a 50 M broadband connection. Additional speeds are available at a discounted price by contacting the operator Telia.

  • Pets allowed

    Yes

  • Non-smoking building

    Yes

Available apartments from the same building

Similar rental apartments in these neighbourhoods

Looking for a home in this area? Create a search alert and be the first to hear about newly available apartments!

Create a search alert to receive email notifications whenever homes matching your criteria become available. You can set up one or several alerts, and if you like, share them with your friends.

Set up search alert