Soukka, Espoo
Soukanniementie 1 B
- Water rate by usage
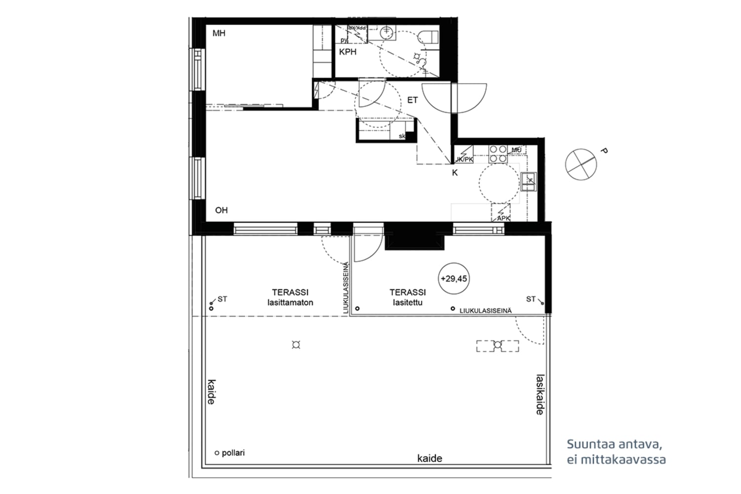
- 1 bedroom, 57 m²
- Rented
- 5/5 , has elevator
Soukka, Espoo
Show in map
Eco-efficient rental home in low-energy building
Seaside setting amid nature
These new eco-efficient rental homes stand in a handsome location on the cliffs of Soukanniemi headland. The energy efficiency is taken into account in e.g. structures and unit fittings. Heat pumps are used to generate heat, as the terrain is ideally suited for utilising geothermal heating. Little details have big impacts on energy consumption: the lighting, for instance, makes use of energy-efficient LED lamps and motion sensors.
The top-floor units offers views all the way to the sea. All units have either a balcony or ground-level terrace. The building’s shared sauna section is on the basement floor while the attic features a fabulous decked rooftop terrace with spectacular views of the surrounding nature, all the way to the sea. Those with green thumbs will take particular pleasure in the raised beds for residents’ use on the building land.
See the Soukanniementie brochure
The building was credited on Finland’s Smartest and Happiest Residential Building competition. Read more »
The water fees will switch over to water consumption-based billing on 1 December 2024.
Included in rent
With surcharge
Security deposit €0
The security deposit for almost all SATO homes is €0 – which means you can use the money you save for something else like decorating your new home!
Telia broadband
The rent includes Telia 50 M internet connection and, if necessary, you can also increase the speed at a discount price.
Pets allowed
Pets are important family members and warmly welcome as residents in almost all SATO homes.
Available apartments from the same building
Similar rental apartments in these neighbourhoods
Looking for a home in this area? Create a search alert and be the first to hear about newly available apartments!
Create a search alert to receive email notifications whenever homes matching your criteria become available. You can set up one or several alerts, and if you like, share them with your friends.