Siirry pääsisältöön
Palaa hakutuloksiin

Kamppi, Helsinki

Lönnrotinkatu 32 A

  • Vesimaksu 27 €/hlö/kk
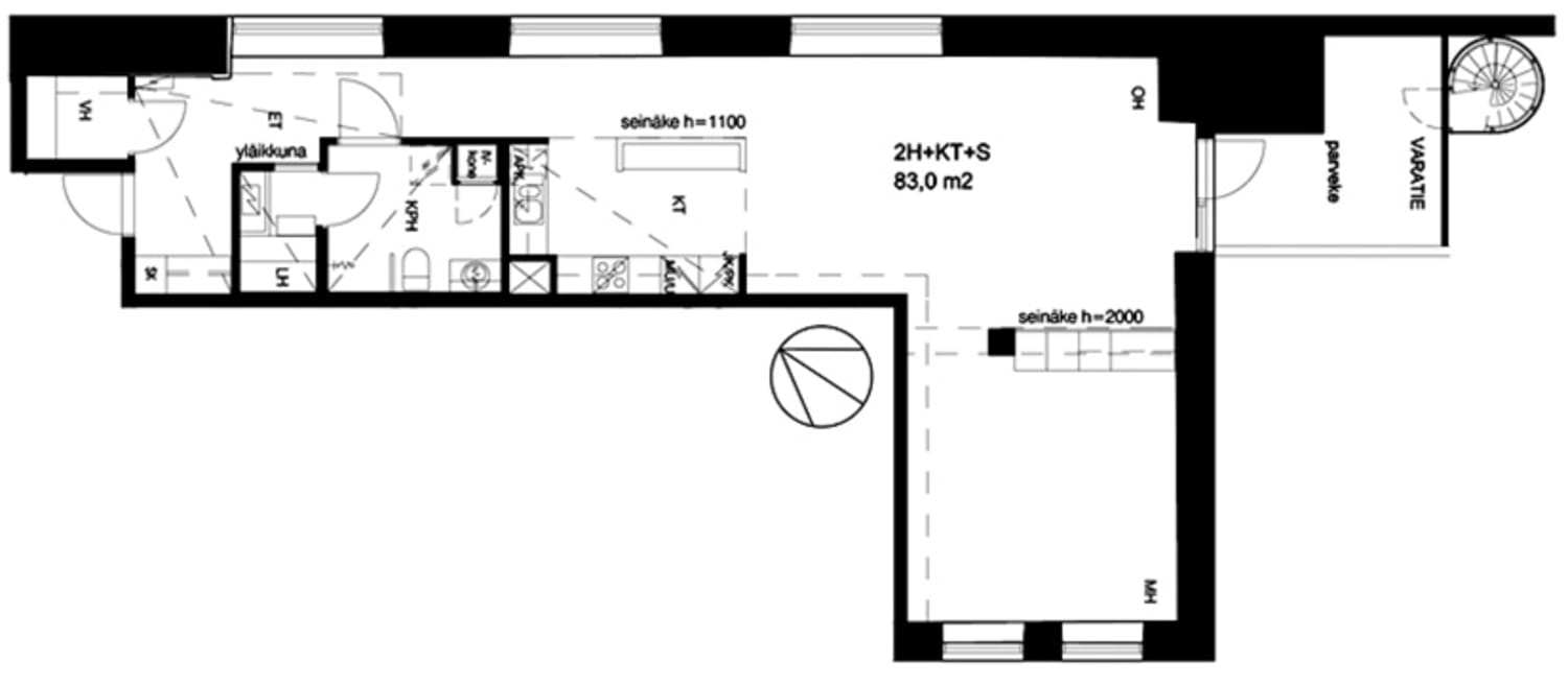
  • 2h+kk+s, 83 m²
  • Vuokrattu
  • 4/6 , talossa hissi
  • Kamppi, HelsinkiKatso kartalla

Kantakaupungin kaunotar

Kaunis loft-tyylinen kaupunkikoti

Korkeatasoinen koti kantakaupungista!

Ajattoman tyylikäs ja todella tilava kaksio sijaitsee kivenheiton päässä keskustan palveluista, mutta kaukana liikenteen melusta. Asunnon ikkunat ja sisään vedetty parveke avautuvat rauhallisille sisäpihoille. Kaunis kuusipaneloitu sauna ja avara kylpyhuone lisäävät ylellisyyden tuntua.

Asuinhuoneiden lattiat ovat tammiparkettia. Kylpyhuoneessa on vaakaan ladottu iso valkoinen seinäkaakeli, hillitty tummanruskea laattalattia ja mukavuuslattialämmitys. Keittiön kaapistot ovat eleettömän valkoiset ja niiden alareunassa on alumiininen vedinlista. Kalustevälikaakelointi on tummanharmaa ja työtasot ovat kaunista harmaarakeista graniittia. Asunnon vakiovarustukseen kuuluvat rosterinen jää-pakastinkaappi, tasoon upotettu keraaminen liesi uuneineen, mikroaaltouuni ja astianpesukone, kaikki UPOn mallistoa.

Vuokraan sisältyy

OmaSATO
Kuivaushuone
Varastot
Ulkoiluvälinevarasto

Lisämaksulla saat

Autopaikka, vapaana 0 kpl
Lue lisää asiakaseduista

Talon säännöt

Lemmikit sallittu
Grillaus
  • Osoite

  • Pinta-ala

    83 m²

  • Huoneistotyyppi

    2 huonetta + keittokomero + sauna

  • Kerros

    4/6

  • Hissi

    Kyllä

  • Sauna

    Kyllä

  • Parveke

    Kyllä

  • Valmistumis­vuosi

    1890

  • Peruskorjaus­vuosi

    2008

  • TV-järjestelmä

    Kaapeli

  • Vapautuminen

    Vuokrattu

  • Varallisuusrajat

    Ei

  • Vuokra

  • Vuokravakuus

    0 €, (yrityksille min. 1 kk vuokra)

  • Kotivakuutus

    Pakollinen, ei sisälly vuokraan

  • Vesimaksu

    27 €/hlö/kk

  • Sähkömaksu

    Vuokralainen solmii itse sähkösopimuksen.

  • Lemmikit sallittu

    Kyllä

  • Savuton talo

    Ei

  • Jääkaapin tyyppi

    Jääpakastinkaappi

  • Lieden tyyppi

    Perinteinen

  • Astianpesukone

    Liitännät

  • Yleiset tilat

    Kuivaushuone, Väestönsuoja, Ullakko, kellari tai irtaimistovarasto, Ulkoiluväline­varasto

  • Autopaikat

    Autohalli 22 kpl

    Lisätiedot vuokraus@sato.fi
    Ei sisälly vuokraan

  • Palvelupäällikkö

    Susanne Salo

  • Sisätilojen huolto

    SATO talomestari

  • Huoltoyhtiö

    Kiinteistöpalvelu Hytönen Oy, Laivurinrinne 1, 00120, HELSINKIhttps://www.hytonen.fi/

Siirry talon sivulle
  • Väestönsuoja

    Kyllä

Vapaita asuntoja tästä talosta

Muut vastaavat asunnot alueelta

Etsitkö kotia tältä alueelta? Tee hakuvahti ja kuule vapautuvista asunnoista ensimmäisenä!

Tee hakuvahti, niin saat ilmoitukset sähköpostiisi, kun toiveitasi vastaavia koteja vapautuu. Voit tehdä yhden tai useamman hakuvahdin ja halutessasi jakaa ne kavereiden kanssa.

Tee hakuvahti