Rajakylä, Vantaa
Sompakuja 2-4 C
- Vesimaksu kulutuksen mukaan
- 4h+kk, 67 m²
- Vuokrattu
- 3/5 , talossa hissi
Rajakylä, Vantaa
Katso kartalla
Tyylikkäästi sisustettu koti
Uusi vuokra-asunto Rajakylässä
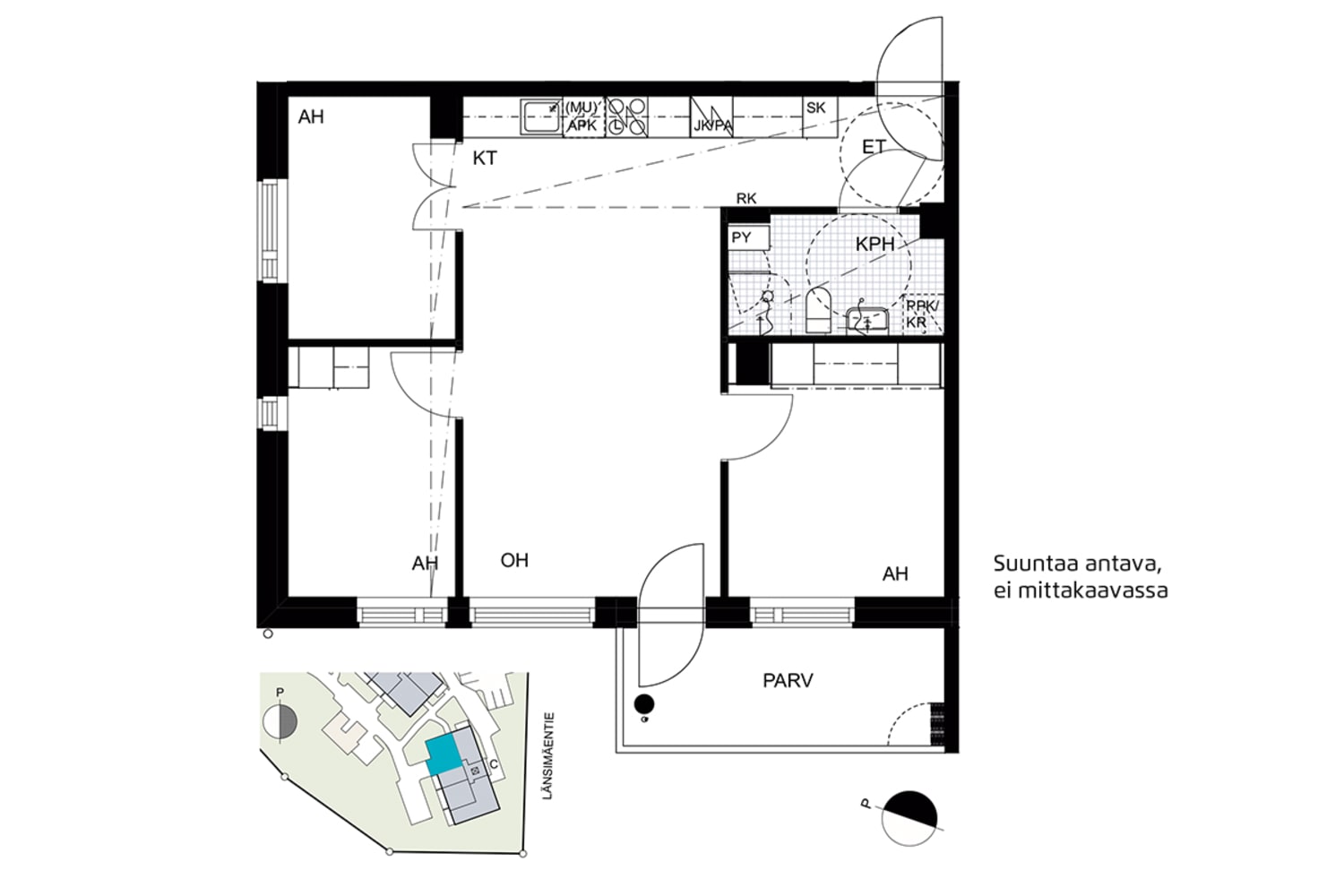
Viihtyisän perheasunnon avoin keittiö ja olohuone muodostavat avaran oleskelualueen, joka on helppo sisustaa mieleisekseen. Makuuhuoneista kaksi on vierekkäin talon ulkoseinustalla ja yksi omassa rauhassaan asunnon toisella puolella. Lasitettu parveke on aurinkoisen pihan puolella.
Asuinhuoneiden lattiat ovat tumman harmaata tammea mukailevaa laminaattia. Keittiön yläkaappien ovet ovat valkoiset ja alakaapeissa on vaaleat puunsyykuvioiset ovet. Ylä- ja alakaappien välinen tila on laatoitettu murretun valkoisella laatalla. Laminaattityötaso on samaa tumman harmaata kuin lattiakin. Varustukseen kuuluu keraaminen liesi, astianpesukone ja jääkaappipakasti. Kokonaan laatoitetun kylpyhuoneen lattia on tummaa klinkkeriä ja vaalean harmaita seiniä elävöittää sininen tehosteseinä. Pesukoneelle ja kuivausrummulle on tilavaraus.
Asunto ja koko talo pihoineen ovat savuttomia.
Asunnot ja koko talo pihoineen ovat savuttomia. Asukasmäärään perustuva vesimaksu muuttuu 1.12.2024 alkaen vedenkulutukseen perustuvaan vesimaksuun.
Vuokraan sisältyvät
Lisämaksulla saat
Vakuus 0 €
Lähes kaikissa asunnoissamme vuokravakuus on nolla euroa - voit käyttää säästyneen summan vaikkapa uuden kodin sisustamiseen!
Telia laajakaista
Vuokraan sisältyy Telia 50 M nettiyhteys, ja tarvittaessa voit nostaa nopeutta etuhintaan.
Lemmikit tervetulleita
Lemmikit ovat tärkeitä perheenjäseniä ja lämpimästi tervetulleita asukkaaksi lähes kaikkiin SATOkoteihin.