Siirry pääsisältöön
Palaa hakutuloksiin

Finnoo, Espoo

Peijinkuja 10 A

Hae tätä asuntoa

Finnoon metro ja palvelut kävelyetäisyydellä

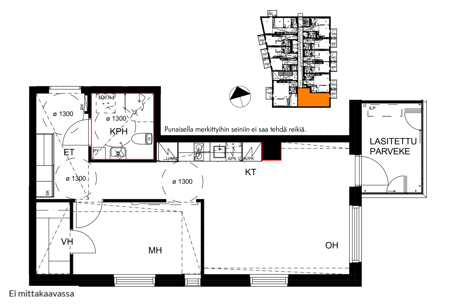
Mukava kaksio, jossa kaikelle on paikkansa

Moneen taipuvassa tehokaksiossa on tehokas ja toimiva pohja. Kahteen ilmansuuntaan suuntautuvat ikkunat tuovat valoa sisään vuodenajasta riippumatta. Kesäaikaan voit jatkaa huonetta itään avautuvalle, lasitetulle parvekkeelle.
Tämä koti soveltuu monenlaisiin elämäntilanteisiin ja sen ajattoman neutraalit värivalinnat tarjoavat mainion perustan oman tyylisi ilmaisuun.
Olohuone ja keittiö muodostavat toimivan oleskelutilan. Kesäaikaan voit jatkaa huonetta itään avautuvalle, lasitetulle parvekkeelle.
Hyvin varustellussa keittiössä on ilo kokkailla: astianpesukone hoitaa tiskit ja keraaminen liesi on helppo pitää puhtaana. Mikroaaltouunillekin on paikka valmiina.
Arjesta hieman siistimpää tekee makuuhuoneen yhteydessä sijaitseva vaatehuone. Lisää säilytyskomeroita on eteisessä.
Raikkaan kylpyhuoneen seinät ovat valkoista ja lattia harmaata keraamista laattaa. Tilaa on rentoutumisen lisäksi myös vaatehuollolle. Heti oven vieressä on paikka pyykinpesukoneelle ja kuivausrummulle, kätevä pyykkikaappi taas helpottaa pyykkien lajittelua ja säilytystä.
Tule näytölle tutustumaan! Olisiko tässä uusi elämäsi vuokrakoti?

Vuokraan sisältyvät

Laajakaista, Telia 50 M
OmaSATO
Talopesula

Lisämaksulla saat

Autopaikka
Talosauna
Lue lisää asiakaseduista

  • Sauna

    Ei

  • Parveke

    Lasitettu parveke

  • Asuntoesite

  • Jääkaapin tyyppi

    Jääkaappi ja pakastin

  • Lieden tyyppi

    Induktio

  • Astianpesukone

    Kyllä

Lattiat ovat vaalean tammen väristä laminaattia ja jalkalistat valkoiset. Seinät on maalattu valkoisiksi ja ikkunoissa on valkoiset sälekaihtimet ja edessä on kaksiuraiset verhokiskot. Vaatekomeroiden ovet ovat valkoisia. Keittiökaapit ovat valkoisia mikrolaminaattiovia ja työtason ja välitilan komposiittisisustuslevy harjatun kuparin värisiä. Keittiöissä on 50 tai 60 cm leveä keraaminen liesi, 45 tai 60-centtinen astianpesukone, jääkaappi-pakastin tai jääkaappi ja erillinen pakastin, liesikupu sekä kalusteissa varaus mikroaaltouunille. Kodinkoneet ovat valkoisia. Kylpyhuoneet on laatoitettu: lattia mattaharmaata 10x10 laattaa ja seinät valkoista 20x40 kiiltävää laattaa. Märkätilojen katot ovat valkoiseksi maalattua tervaleppää. Kylpyhuoneen kaapit ovat kotimaisia Kide-kylpyhuonekalusteita. Kylpyhuoneessa on paikka ja liitännät pyykinpesukoneelle ja kuivausrummulle. Parvekkeiden lattiat ovat betonielementtejä. Parvekkeiden kaiteet ovat metallirunkoisia lasikaiteita, kaiteen yläpuolella avattavat parvekelasit. Parvekkeilla ja terasseilla on pistorasia ja tuuletusteline. Asunnoissa on keskitetty koneellinen ilmanvaihto. Rakennuksessa on puheyhteydellä varustettu ovipuhelin ja iLOQ-lukitusjärjestelmä. Lämmityksenä on vesikiertoinen patterilämmitys, joka on liitetty kaukolämpöverkostoon. Kylpyhuoneiden ja saunojen laattalattioissa on vesikiertoinen lattialämmitys. Väestönsuoja/irtaimistovarastot, ulkoiluvälinevarastot ja lastenvaunuvarastot sijaitsevat rakennuksen 1. kerroksessa. Osa irtaimistovarastoista on sijoitettuna ylempiin kerroksiin käytävän varrelle. Kerhotila, talosaunat ja pesulat kuivaushuoneineen sijaitsevat rakennuksen 13. kerroksessa. Kerhotilalla on lasitettu parveke. Pihalla on istutuksia, polkupyöräpaikkoja, mattojen tomutusteline, lasten leikkipaikkoja ja oleskelualueita. Piha-alue on korttelin yhteiskäytössä Peijinkuja 6A:n ja 6B:n kanssa.

  • Vapautuminen

    Vapautumassa 4.3.

  • Varallisuusrajat

    Ei

  • Vuokra

    919 €/kk
  • Vuokravakuus

    0 €, (yrityksille min. 1 kk vuokra)

  • Vuokrasopimus

    Toistaiseksi voimassa oleva, minimi asumisaika 12 kk

  • Irtisanomis­mahdollisuus

    12 kk vuokrasopimuksesta tai sopimussakolla aiemmin

  • Kotivakuutus

    Pakollinen, ei sisälly vuokraan

  • Vesimaksu

    Kulutuksen mukaan

  • Sähkömaksu

    Vuokralainen solmii itse sähkösopimuksen.

  • Laajakaista

    Vuokraan sisältyy 50 M laajakaistaliittymä. Voit hankkia lisänopeutta etuhintaan ottamalla yhteyttä operaattoriin Telia.

  • Lemmikit sallittu

    Kyllä

  • Savuton talo

    Kyllä

Vapaita asuntoja tästä talosta

Muut vastaavat asunnot alueelta

Etsitkö kotia tältä alueelta? Tee hakuvahti ja kuule vapautuvista asunnoista ensimmäisenä!

Tee hakuvahti, niin saat ilmoitukset sähköpostiisi, kun toiveitasi vastaavia koteja vapautuu. Voit tehdä yhden tai useamman hakuvahdin ja halutessasi jakaa ne kavereiden kanssa.

Tee hakuvahti