Siirry pääsisältöön
Palaa hakutuloksiin

Suurpelto, Espoo

    Green homes

Henttaan puistokatu 6 B

Lasitettu parveke ja oma sauna

Uusi vuokra-asunto uudella alueella

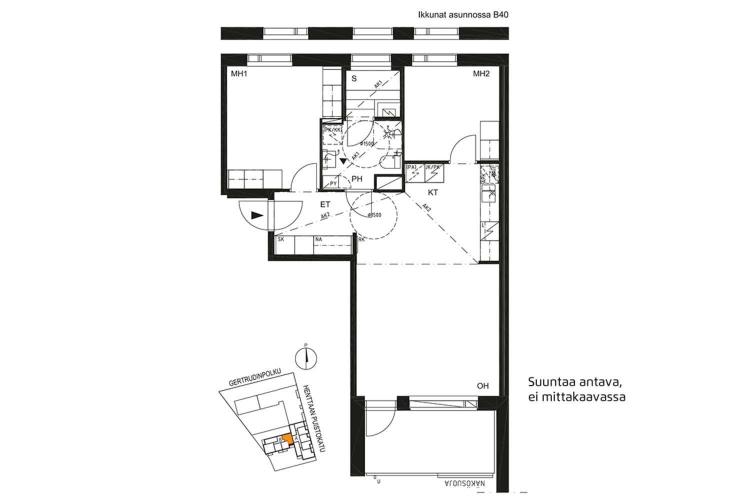
Tyylikkään kodin sydän on keittiön ja olohuoneen muodostama yhtenäinen valoisa tila, josta on käynti etelään aukeavalle lasitetulle parvekkeelle. Isommassa makuuhuoneessa on tavallista runsaammin vaatekomeroita helpottamaan vaatesäilytystä. Pienempi makuuhuone sopii mainiosti myös työhuoneeksi. Oman saunan löylyissä on mukava rentoutua päivän päätteeksi.

Huoneiston lattiat ovat valkaistua tammea mukailevaa laminaattia. Keittiön kaapistot ovat valkoiset ja kaapistojen välitila on laatoitettu harmaalla laatalla. Työtaso on tumman ruskeaa laminaattia. Keittiön varusteisiin kuuluu valkoiset kodinkoneet, keraaminen liesi, astianpesukone, kylmälaitteet sekä varaus mikroaaltouunille. Ikkunallisen kylpyhuoneen seinät ovat valkoista laattaa, jota elävöittää tyylikäs harmaa kohokuvioitu tehostelaatta. Lattiat ovat väriltään harmaat. Kylpyhuoneen kalusteet ovat valkoiset, pyykinpesukoneelle ja kuivausrummulle varaus.

Talo on savuton ja tupakointi on kielletty koko kiinteistön alueella.

Näihin koteihin voit tehdä toistaiseksi voimassa olevan vuokrasopimuksen. Talossa on SmartPOST-pakettiautomaatti.

Vuokraan sisältyvät

Laajakaista, Telia 50 M
OmaSATO
Kuivaushuone

Lisämaksulla saat

Autopaikka, vapaana 8 kpl
Sähköauton latauspaikka
Talosauna
Lue lisää asiakaseduista

  • Sauna

    Kyllä

  • Parveke

    Lasitettu parveke

  • TV-järjestelmä

    Kaapeli

  • Jääkaapin tyyppi

    Jääkaappipakastin

  • Lieden tyyppi

    Keraaminen

  • Astianpesukone

    Kyllä

  • Pesukoneliitännät

    Tulo- ja poistoliitännät

  • Vapautuminen

    Vuokrattu

  • Varallisuusrajat

    Ei

  • Vuokra

  • Vuokravakuus

    0 €, (yrityksille min. 1 kk vuokra)

  • Kotivakuutus

    Pakollinen, ei sisälly vuokraan

  • Vesimaksu

    Kulutuksen mukaan

  • Sähkömaksu

    Vuokralainen solmii itse sähkösopimuksen.

  • Laajakaista

    Vuokraan sisältyy 50 M laajakaistaliittymä. Voit hankkia lisänopeutta etuhintaan ottamalla yhteyttä operaattoriin Telia.

  • Lemmikit sallittu

    Kyllä

  • Savuton talo

    Kyllä

Green homes

Green homes -kodeissa on joko maalämpö tai kulutusperustainen vedenlaskutus tai molemmat. Lisäksi kotien asukkaat saavat vuokranantajaltaan säännöllisesti tietoa asumisesta aiheutuvista ilmastopäästöistä ja opastusta kestävämpään asumiseen.

Lue lisää »

Vapaita asuntoja tästä talosta

Muut vastaavat asunnot alueelta

Etsitkö kotia tältä alueelta? Tee hakuvahti ja kuule vapautuvista asunnoista ensimmäisenä!

Tee hakuvahti, niin saat ilmoitukset sähköpostiisi, kun toiveitasi vastaavia koteja vapautuu. Voit tehdä yhden tai useamman hakuvahdin ja halutessasi jakaa ne kavereiden kanssa.

Tee hakuvahti