Siirry pääsisältöön
Palaa hakutuloksiin

Konala, Helsinki

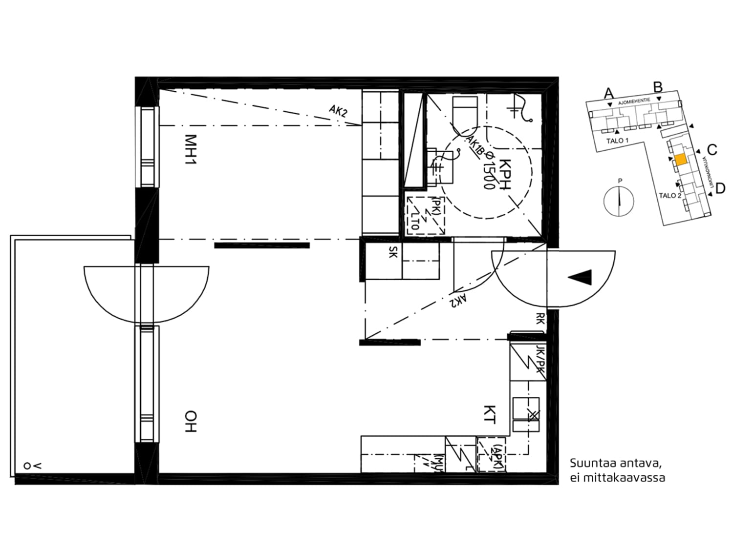
Limonadikuja 1 C

  • Vesimaksu 27 €/hlö/kk
  • 2h+kt, 38,5 m²
  • Vuokrattu
  • 5/5 , talossa hissi
  • Konala, HelsinkiKatso kartalla

Kotitalo Ristikon naapurissa

Vaaleasävyiset vuokra-asunnot Konalassa

Ajomiehentien ja Limonadikujan kulmassa on kaksi kerrostaloa, joissa on porrastetusti kolmesta kuuteen kerrosta. Asuntojen pohjaratkaisut ovat selkeitä ja avaria, keittiöt avautuvat oleskelutiloihin. Keittiökalusteet ovat valkoisia ja työtasot ovat tumman puun sävyistä laminaattia. Tilavissa kylpyhuoneissa on pesukonetta varten tilavaraus ja liitännät. Talojen alakerroksissa on varastotilojen lisäksi yhteiset kerhotilat, pesulat ja kuivaushuoneet. Autopaikat ovat talon alla pysäköintihallissa.

Asunnot ja koko talo pihoineen ovat savuttomia.

Vuokraan sisältyy

Laajakaista, Telia 50 M
OmaSATO
Talopesula
Kuivaushuone
Varastot
Kerhotila
Ulkoiluvälinevarasto

Lisämaksulla saat

Autopaikka, vapaana 16 kpl
Talosauna
Lue lisää asiakaseduista

Talon säännöt

Lemmikit sallittu
Savuton asunto, parveke, piha-alue
Grillaus
  • Vapautuminen

    Vuokrattu

  • Varallisuusrajat

    Ei

  • Vuokra

  • Vuokravakuus

    0 €, (yrityksille min. 1 kk vuokra)

  • Kotivakuutus

    Pakollinen, ei sisälly vuokraan

  • Vesimaksu

    27 €/hlö/kk

  • Sähkömaksu

    Vuokralainen solmii itse sähkösopimuksen.

  • Laajakaista

    Vuokraan sisältyy 50 M laajakaistaliittymä. Voit hankkia lisänopeutta etuhintaan ottamalla yhteyttä operaattoriin Telia.

  • Lemmikit sallittu

    Kyllä

  • Savuton talo

    Kyllä

  • Jääkaapin tyyppi

    Jääpakastinkaappi

  • Lieden tyyppi

    Perinteinen

  • Astianpesukone

    Kyllä

  • Pesukoneliitännät

    Tulo- ja poistoliitännät

  • Yleiset tilat

    Kerhohuone, Kuivaushuone, Väestönsuoja, Ullakko, kellari tai irtaimistovarasto, Ulkoiluväline­varasto, Pesutupa, Talosauna

  • Autopaikat

    Autohalli 62 kpl

    Lisätiedot sato@khtahti.fi
    Ei sisälly vuokraan

  • Palvelupäällikkö

    Mari Piipponen

  • Sisätilojen huolto

    SATO talomestari

  • Huoltoyhtiö

    Kiinteistöhuolto Tahti, Mäntyviita 2, 02110, ESPOOhttps://kiinteistohuoltotahti.fi/

Siirry talon sivulle

Vapaita asuntoja tästä talosta

Muut vastaavat asunnot alueelta

Etsitkö kotia tältä alueelta? Tee hakuvahti ja kuule vapautuvista asunnoista ensimmäisenä!

Tee hakuvahti, niin saat ilmoitukset sähköpostiisi, kun toiveitasi vastaavia koteja vapautuu. Voit tehdä yhden tai useamman hakuvahdin ja halutessasi jakaa ne kavereiden kanssa.

Tee hakuvahti