Siirry pääsisältöön
Palaa hakutuloksiin

Lassila, Helsinki

Tinatie 3 A

  • Vesimaksu 27 €/hlö/kk
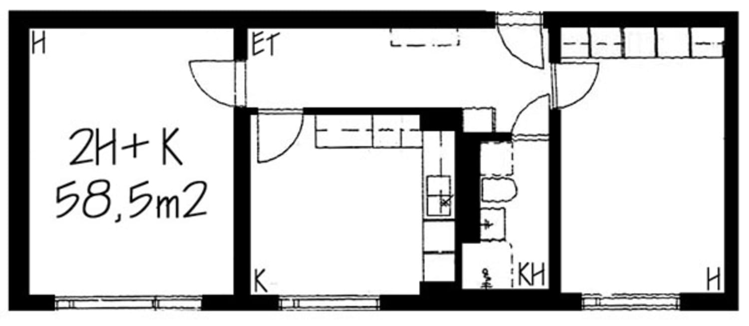
  • 2h+k, 58,5 m²
  • Vuokrattu
  • 3/5 , talossa hissi
  • Lassila, HelsinkiKatso kartalla

Napakoita pikkukoteja

Lassilassa on luonto lähellä

Vehreiden kävelyreittien tuntumassa, kivenheiton päässä Pohjois-Haagan juna-asemasta odottaa uusia asukkaitaan selkeällä pohjaratkaisulla varustettu kaksio. Kaikkiin huoneisiin on käynti eteisestä, joten asunto sopii myös kimppakämpäksi. Ikkunoista avautuu rauhallinen näkymä junaradan suuntaan.

Asuinhuoneiden lattaiamateriaalina on laminaatti. Kylpyhuone on kaakeloitu.

Kodikkaassa keittiössä on valkoiset puulistoitetut kaapistot, nelilevyinen sähköliesi sekä jää-pakastinkaappi.

 

Vuokraan sisältyy

Laajakaista, Telia 50 M
OmaSATO
Talopesula
Kuivaushuone
Varastot
Mankeli
Ulkoiluvälinevarasto

Lisämaksulla saat

Autopaikka, vapaana 4 kpl
Talosauna
Lue lisää asiakaseduista

Talon säännöt

Lemmikit sallittu
Grillaus
  • Osoite

  • Pinta-ala

    58,5 m²

  • Huoneistotyyppi

    2 huonetta + keittiö

  • Kerros

    3/5

  • Hissi

    Kyllä

  • Sauna

    Ei

  • Parveke

    Ei

  • Piha / terassi

    Ei

  • Valmistumis­vuosi

    1979

  • TV-järjestelmä

    Kaapeli

  • Vapautuminen

    Vuokrattu

  • Varallisuusrajat

    Ei

  • Vuokra

  • Vuokravakuus

    0 €, (yrityksille min. 1 kk vuokra)

  • Kotivakuutus

    Pakollinen, ei sisälly vuokraan

  • Vesimaksu

    27 €/hlö/kk

  • Sähkömaksu

    Vuokralainen solmii itse sähkösopimuksen.

  • Laajakaista

    Vuokraan sisältyy 50 M laajakaistaliittymä. Voit hankkia lisänopeutta etuhintaan ottamalla yhteyttä operaattoriin Telia.

  • Lemmikit sallittu

    Kyllä

  • Savuton talo

    Ei

  • Lieden tyyppi

    Keraaminen

  • Astianpesukone

    Liitännät

  • Pesukoneliitännät

    Tulo- ja poistoliitännät

  • Yleiset tilat

    Pesutupa, Väestönsuoja, Ullakko, kellari tai irtaimistovarasto, Ulkoiluväline­varasto, Talosauna, Kuivaushuone, Mankeli

  • Autopaikat

    Autohalli 11 kpl

    Lisätiedot sato@khtahti.fi
    Ei sisälly vuokraan

  • Palvelupäällikkö

    Matti Korte

  • Sisätilojen huolto

    SATO talomestari

  • Huoltoyhtiö

    Kiinteistöhuolto Tahti, Mäntyviita 2, 02110, ESPOOhttps://kiinteistohuoltotahti.fi/

Siirry talon sivulle

Vapaita asuntoja tästä talosta

Muut vastaavat asunnot alueelta

Etsitkö kotia tältä alueelta? Tee hakuvahti ja kuule vapautuvista asunnoista ensimmäisenä!

Tee hakuvahti, niin saat ilmoitukset sähköpostiisi, kun toiveitasi vastaavia koteja vapautuu. Voit tehdä yhden tai useamman hakuvahdin ja halutessasi jakaa ne kavereiden kanssa.

Tee hakuvahti