Siirry pääsisältöön
Palaa hakutuloksiin

Suurmetsä, Helsinki

Kalteentie 2 A

  • 949 €
  • Vesimaksu 27 €/hlö/kk
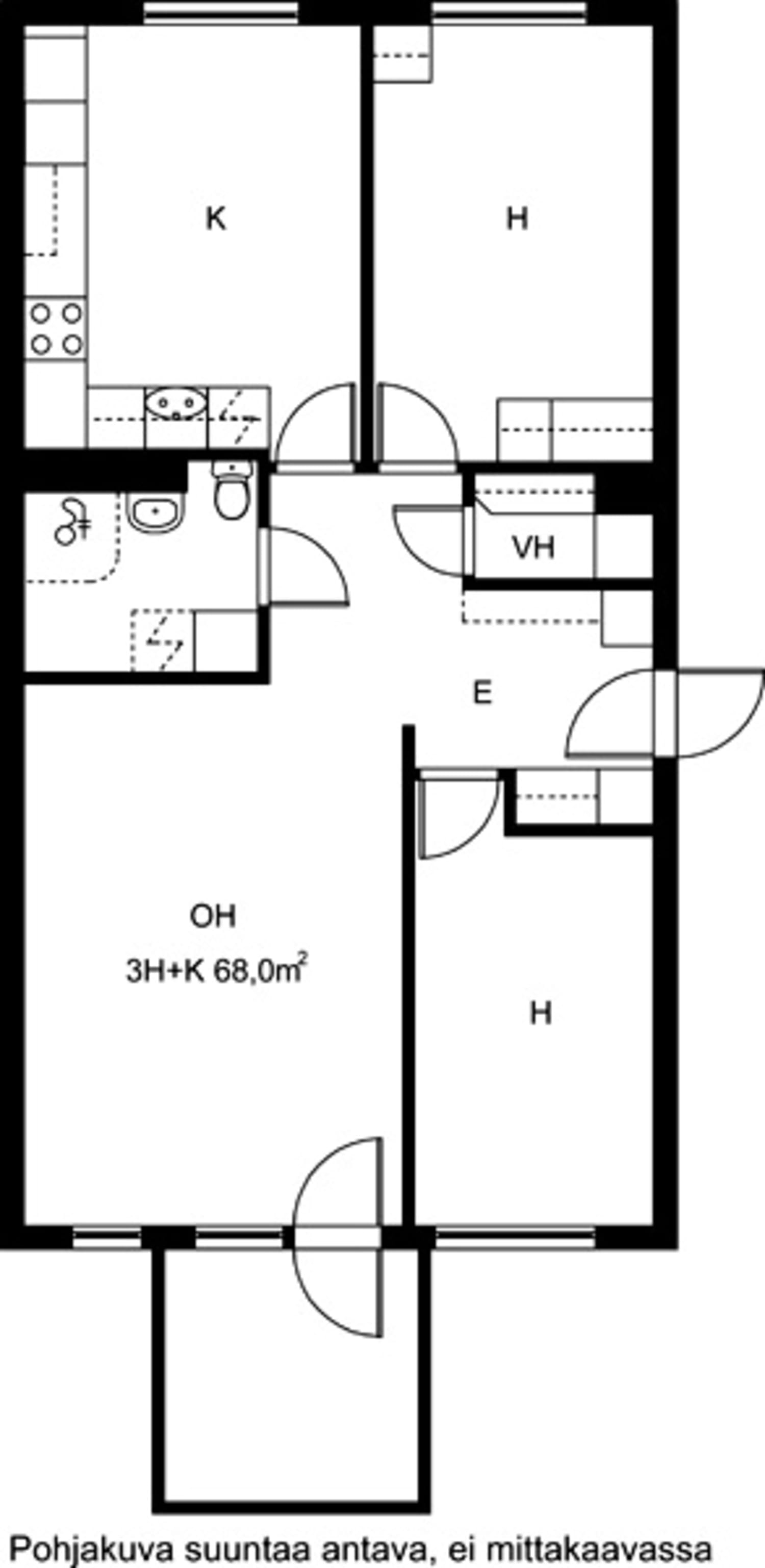
  • 3h+k, 68 m²
  • Heti vapaa
  • 2/3
  • Suurmetsä, Helsinki

    Katso kartalla

Kodikas läpitalon vuokrakolmio Suurmetsässä

Lähellä päiväkoti, koulu ja mahtavat ulkoilumaastot

Lapsiperheelle passeli vuokra-asunto on vapautunut Lahdenväylän liikenneyhteyksien ja Kolkkapuiston sekä lukuisten muiden viheralueiden tuntumassa. Kodikas pohjaratkaisu on perinteinen: Keittiö on oma huoneensa ja leikkipihan puolelle eteläkaakkoon avautuvalle parvekkeelle pääsee olohuoneesta.

Asuinhuoneissa on laminaattilattia ja kylpyhuoneessa kaakeloidut seinät ja massalattia. Keittiön varusteisiin kuuluvat jää-pakastinkaappi, astianpesukone ja nelilevyinen sähköliesi. Kylpyhuoneeseen mahtuu pesukone.

Varaa asuntonäyttö ja tulkaa koko perheen voimin katsomaan, sopisiko tämä koti teidän elämänmenoonne?

Tähän kotiin voit tehdä toistaiseksi voimassa olevan vuokrasopimuksen.

Vuokraan sisältyvät

Laajakaista, Telia 50 M
OmaSATO
Talopesula

Lisämaksulla saat

Autopaikka, vapaana 19 kpl
Talosauna
Lue lisää asiakaseduista

  • Sauna

    Ei

  • Parveke

    Kyllä

  • Piha / terassi

    Ei

  • Lieden tyyppi

    Perinteinen

  • Astianpesukone

    Liitännät

  • Pesukoneliitännät

    Tulo- ja poistoliitännät

  • Vapautuminen

    Heti vapaa

  • Varallisuusrajat

    Ei

  • Vuokra

    949 €/kk
  • Vuokravakuus

    0 €, (yrityksille min. 1 kk vuokra)

  • Vuokrasopimus

    Toistaiseksi voimassa oleva, minimi asumisaika 12 kk

  • Irtisanomis­mahdollisuus

    12 kk vuokrasopimuksesta tai sopimussakolla aiemmin

  • Kotivakuutus

    Pakollinen, ei sisälly vuokraan

  • Vesimaksu

    27 €/hlö/kk

  • Sähkömaksu

    Vuokralainen solmii itse sähkösopimuksen.

  • Laajakaista

    Vuokraan sisältyy 50 M laajakaistaliittymä. Voit hankkia lisänopeutta etuhintaan ottamalla yhteyttä operaattoriin Telia.

  • Lemmikit sallittu

    Kyllä

  • Savuton talo

    Ei

Vapaita asuntoja tästä talosta

Muut vastaavat asunnot alueelta

Etsitkö kotia tältä alueelta? Tee hakuvahti ja kuule vapautuvista asunnoista ensimmäisenä!

Tee hakuvahti, niin saat ilmoitukset sähköpostiisi, kun toiveitasi vastaavia koteja vapautuu. Voit tehdä yhden tai useamman hakuvahdin ja halutessasi jakaa ne kavereiden kanssa.

Tee hakuvahti