Siirry pääsisältöön
Palaa hakutuloksiin

Vuosaari, Helsinki

ARA

Meri-Rastilan tie 9 A

  • Vesimaksu 27 €/hlö/kk
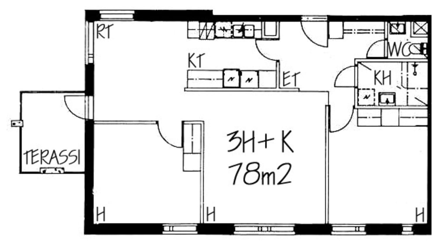
  • 3h+k, 78 m²
  • Vuokrattu
  • 1/3
  • Vuosaari, HelsinkiKatso kartalla

Kodikkaita tilavia kolmioita

Mainettaan mukavampi Meri-Rastila

Kävelymatkan päässä Rastilan metroasemasta, vehreän pihan laidalla on vapautunut selkeäpohjainen ja käytännöllinen koti, jonka parveke avautuu etelään leikkipihalle.

Avara olohuone ja valoisa, reilun kokoinen ruokailutila sekä erillinen wc helpottavat perheen arkirutiineja ja molemmissa makuuhuoneissa on mukavasti säilytystilaa.

Asuinhuoneiden lattiamateriaalina on laminaatti. Kylpyhuone on kaakeloitu. Keittiössä on jää-pakastinkaappi, tilavaraukset astianpesukoneelle sekä toiselle kylmäkalusteelle.

Vuokraan sisältyy

OmaSATO
Kuivaushuone
Varastot
Kerhotila
Ulkoiluvälinevarasto

Lisämaksulla saat

Autopaikka
Talosauna
Talopesula
Lue lisää asiakaseduista

Talon säännöt

Lemmikit sallittu
Grillaus
  • Vapautuminen

    Vuokrattu

  • Varallisuusrajat

    Kyllä

  • Vuokra

  • Vuokravakuus

    0 €

  • Kotivakuutus

    Pakollinen, ei sisälly vuokraan

  • Vesimaksu

    27 €/hlö/kk

  • Sähkömaksu

    Vuokralainen solmii itse sähkösopimuksen.

  • Lemmikit sallittu

    Kyllä

  • Savuton talo

    Ei

  • Jääkaapin tyyppi

    Jääpakastinkaappi

  • Lieden tyyppi

    Perinteinen

  • Astianpesukone

    Liitännät

  • Yleiset tilat

    Kuivaushuone, Väestönsuoja, Ullakko, kellari tai irtaimistovarasto, Ulkoiluväline­varasto, Kerhohuone, Talosauna

  • Autopaikat

    Lisätiedot satokumppanikanava@vuokki.fi
    Ei sisälly vuokraan

  • Palvelupäällikkö

    Anita Paasolainen

  • Sisätilojen huolto

    SATO talomestari

  • Huoltoyhtiö

    Linnavuoren Huolto Oy, Linnanherrankuja 4, 00950, HELSINKIhttps://linnavuorenhuolto.fi/

Siirry talon sivulle
  • Väestönsuoja

    Kyllä

Vapaita asuntoja tästä talosta

Muut vastaavat asunnot alueelta

Etsitkö kotia tältä alueelta? Tee hakuvahti ja kuule vapautuvista asunnoista ensimmäisenä!

Tee hakuvahti, niin saat ilmoitukset sähköpostiisi, kun toiveitasi vastaavia koteja vapautuu. Voit tehdä yhden tai useamman hakuvahdin ja halutessasi jakaa ne kavereiden kanssa.

Tee hakuvahti