Siirry pääsisältöön
Palaa hakutuloksiin

Pähkinärinne, Vantaa

Terhokuja 6 B

  • Vesimaksu 27 €/hlö/kk
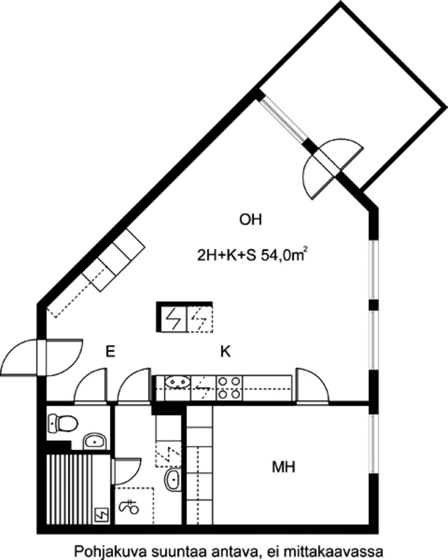
  • 2h+k+s, 54 m²
  • Vuokrattu
  • 1/2
  • Pähkinärinne, VantaaKatso kartalla

Aurinkoisia koteja

Rauhallinen pihapiiri Lammaslammella

Vehreän Lammaslammen läheisyydessä avaralla tontilla sijaitsevissa kodeissa on monipuoliset ja persoonalliset pohjaratkaisut. Kaikissa asunnoissa on parveke ja valoisa olohuone-keittiötila. Keittiöllisissä asunnoissa on kylpyhuoneen lisäksi erillinen wc. Asunnoissa on jää-pakastinkaapin lisäksi tilavaraukset astian- ja pyykinpesukoneille sekä mikroaaltouunille, ja keittiöllisissä asunnoissa toiselle kylmälaitteelle.

Vuokraan sisältyy

OmaSATO
Varastot
Ulkoiluvälinevarasto

Lisämaksulla saat

Autopaikka
Lue lisää asiakaseduista

Talon säännöt

Lemmikit sallittu
Grillaus
  • Vapautuminen

    Vuokrattu

  • Varallisuusrajat

    Ei

  • Vuokra

  • Vuokravakuus

    0 €, (yrityksille min. 1 kk vuokra)

  • Kotivakuutus

    Pakollinen, ei sisälly vuokraan

  • Vesimaksu

    27 €/hlö/kk

  • Sähkömaksu

    Vuokralainen solmii itse sähkösopimuksen.

  • Lemmikit sallittu

    Kyllä

  • Savuton talo

    Ei

  • Yleiset tilat

    Väestönsuoja, Ullakko, kellari tai irtaimistovarasto, Ulkoiluväline­varasto

  • Autopaikat

    Lisätiedot asiakaspalvelu@pahkinahoito.fi
    Ei sisälly vuokraan

  • Palvelupäällikkö

    Nikke Mustonen

  • Sisätilojen huolto

    SATO talomestari

  • Huoltoyhtiö

    Pähkinähoito Oy, Koivuvaarankuja 2, 01640, VANTAAhttps://www.pahkinahoito.fi/

Siirry talon sivulle
  • Väestönsuoja

    Kyllä

Vapaita asuntoja tästä talosta

Muut vastaavat asunnot alueelta

Etsitkö kotia tältä alueelta? Tee hakuvahti ja kuule vapautuvista asunnoista ensimmäisenä!

Tee hakuvahti, niin saat ilmoitukset sähköpostiisi, kun toiveitasi vastaavia koteja vapautuu. Voit tehdä yhden tai useamman hakuvahdin ja halutessasi jakaa ne kavereiden kanssa.

Tee hakuvahti