Siirry pääsisältöön
Palaa hakutuloksiin

Vapaala, Vantaa

Kierretie 4 A

  • Vesimaksu 27 €/hlö/kk
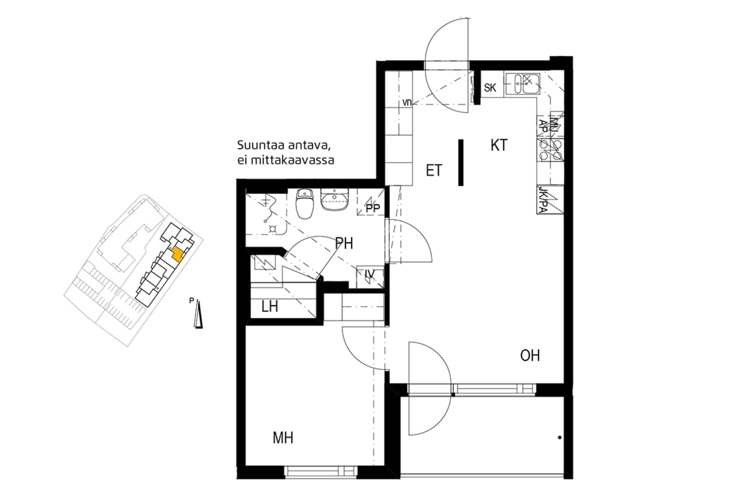
  • 2h+kt+s, 45 m²
  • Vuokrattu
  • 2/3 , talossa hissi
  • Vapaala, VantaaKatso kartalla

Kotitalo vehreällä alueella

Kodikkaat vuokra-asunnot Vapaalassa

Kierretiellä on kodikas matala kerrostalo, jossa on kahdessa portaassa valoisia, selkeälinjaisia vuokrakoteja. Asuntojen pohjaratkaisut ovat käytännöllisiä helposti kalustettavia. Ylempien kerrosten asunnoissa on parveke tai ranskalainen parveke ja pihan tasolla olevissa asunnoissa on oma pihaterassi. Tilavissa kylpyhuoneissa on pesukonetta varten tilavaraus ja liitännät.

Vuokraan sisältyy

Laajakaista, Telia 50 M
OmaSATO
Talopesula
Kuivaushuone
Varastot

Lisämaksulla saat

Autopaikka, vapaana 2 kpl
Lue lisää asiakaseduista

Talon säännöt

Lemmikit sallittu
Savuton asunto, parveke, piha-alue
Grillaus
  • Osoite

  • Pinta-ala

    45 m²

  • Huoneistotyyppi

    2 huonetta + keittotila + sauna

  • Kerros

    2/3

  • Hissi

    Kyllä

  • Sauna

    Kyllä

  • Parveke

    Kyllä

  • Valmistumis­vuosi

    2009

  • TV-järjestelmä

    Kaapeli

  • Vapautuminen

    Vuokrattu

  • Varallisuusrajat

    Ei

  • Vuokra

  • Vuokravakuus

    0 €, (yrityksille min. 1 kk vuokra)

  • Kotivakuutus

    Pakollinen, ei sisälly vuokraan

  • Vesimaksu

    27 €/hlö/kk

  • Sähkömaksu

    Vuokralainen solmii itse sähkösopimuksen.

  • Laajakaista

    Vuokraan sisältyy 50 M laajakaistaliittymä. Voit hankkia lisänopeutta etuhintaan ottamalla yhteyttä operaattoriin Telia.

  • Lemmikit sallittu

    Kyllä

  • Savuton talo

    Kyllä

  • Jääkaappi

    Kyllä

  • Astianpesukone

    Liitännät

  • Yleiset tilat

    Kuivaushuone, Väestönsuoja, Ullakko, kellari tai irtaimistovarasto, Pesutupa

  • Autopaikat

    Autohalli 11 kpl
    Autokansi 17 kpl

    Lisätiedot unce@unce.fi
    Ei sisälly vuokraan

  • Palvelupäällikkö

    Nikke Mustonen

  • Sisätilojen huolto

    SATO talomestari

  • Huoltoyhtiö

    Unce Oy, Nuijalantie 13, 02630, ESPOOhttp://www.unce.fi

Siirry talon sivulle

Vapaita asuntoja tästä talosta

Muut vastaavat asunnot alueelta

Etsitkö kotia tältä alueelta? Tee hakuvahti ja kuule vapautuvista asunnoista ensimmäisenä!

Tee hakuvahti, niin saat ilmoitukset sähköpostiisi, kun toiveitasi vastaavia koteja vapautuu. Voit tehdä yhden tai useamman hakuvahdin ja halutessasi jakaa ne kavereiden kanssa.

Tee hakuvahti