Siirry pääsisältöön
Palaa hakutuloksiin

Soukka, Espoo

Soukanniementie 1 A

Hae tätä asuntoa

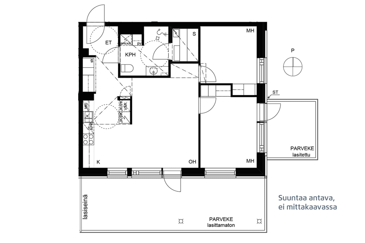
Kaksi parveketta ja tyylikkäät materiaalit

Kodikas kolmio modernissa matalaenergiatalossa.

Kauniin kodin hillityt materiaalit ja tyylikäs keittiö antavat raamit monenlaiselle sisustamiselle. Kodin keskipiste on olohuoneeseen avautuva keittiö ja ruokailutila. Olohuoneesta pääsee tilavalle lasittamattomalle parvekkeelle ja isommasta makuuhuoneesta asunnon toiselle, lasitetulle parvekkeelle.

Asuinhuoneiden lattiat ovat vaaleaa tammilaminaattia. Keittiöissä on valkoiset kaapistot ja vaalean tammen sävyiset laminaattityötasot upotettuine teräksisine tiskialtaineen. Kaapistojen ja tason välinen tila on laatoitettu valkoisella laatalla. Keittiön varusteisiin kuuluu keraaminen liesitaso upotettuna pöytätasoon, erillisuuni, astianpesukone, jääkaappipakastin sekä varaus mikroaaltouunille. 

Reilunkokoisessa kylpyhuoneessa on pääosin raikkaan valkoiset seinälaatat. Tehosteseinät ja lattiat ovat harmaata laattaa. Kylpyhuoneen kalusteet ovat valkoiset ja pesuallas on puun sävyisen tason päälle asennettu valumarmoriallas. Varaus pyykinpesukoneelle ja kuivausrummulle.

Asukasmäärään perustuva vesimaksu muuttuu 1.12.2024 alkaen vedenkulutukseen perustuvaan vesimaksuun.

Vuokraan sisältyvät

Laajakaista, Telia 50 M
OmaSATO
Varastot

Lisämaksulla saat

Autopaikka, vapaana 0 kpl
Sähköauton latauspaikka
Talosauna
Lue lisää asiakaseduista

  • Sauna

    Kyllä

  • Parveke

    Lasitettu parveke

  • Jääkaapin tyyppi

    Jääkaappipakastin

  • Lieden tyyppi

    Keraaminen

  • Astianpesukone

    Kyllä

  • Vapautuminen

    Vapautumassa 1.4.

  • Varallisuusrajat

    Ei

  • Vuokra

    1 299 €/kk
  • Vuokravakuus

    0 €, (yrityksille min. 1 kk vuokra)

  • Vuokrasopimus

    Toistaiseksi voimassa oleva, minimi asumisaika 12 kk

  • Irtisanomis­mahdollisuus

    12 kk vuokrasopimuksesta tai sopimussakolla aiemmin

  • Kotivakuutus

    Pakollinen, ei sisälly vuokraan

  • Vesimaksu

    Kulutuksen mukaan

  • Sähkömaksu

    Vuokralainen solmii itse sähkösopimuksen.

  • Laajakaista

    Vuokraan sisältyy 50 M laajakaistaliittymä. Voit hankkia lisänopeutta etuhintaan ottamalla yhteyttä operaattoriin Telia.

  • Lemmikit sallittu

    Kyllä

  • Savuton talo

    Ei

Vapaita asuntoja tästä talosta

Muut vastaavat asunnot alueelta

Etsitkö kotia tältä alueelta? Tee hakuvahti ja kuule vapautuvista asunnoista ensimmäisenä!

Tee hakuvahti, niin saat ilmoitukset sähköpostiisi, kun toiveitasi vastaavia koteja vapautuu. Voit tehdä yhden tai useamman hakuvahdin ja halutessasi jakaa ne kavereiden kanssa.

Tee hakuvahti