Siirry pääsisältöön
Palaa hakutuloksiin

Hervantajärvi, Tampere

Heittoniitynkuja 5 A

Hae tätä asuntoa

Rentoa vuokra-asumista palveluiden ja luonnon äärellä

Kodikas ja toimivapohjainen koti Hervantajärveltä

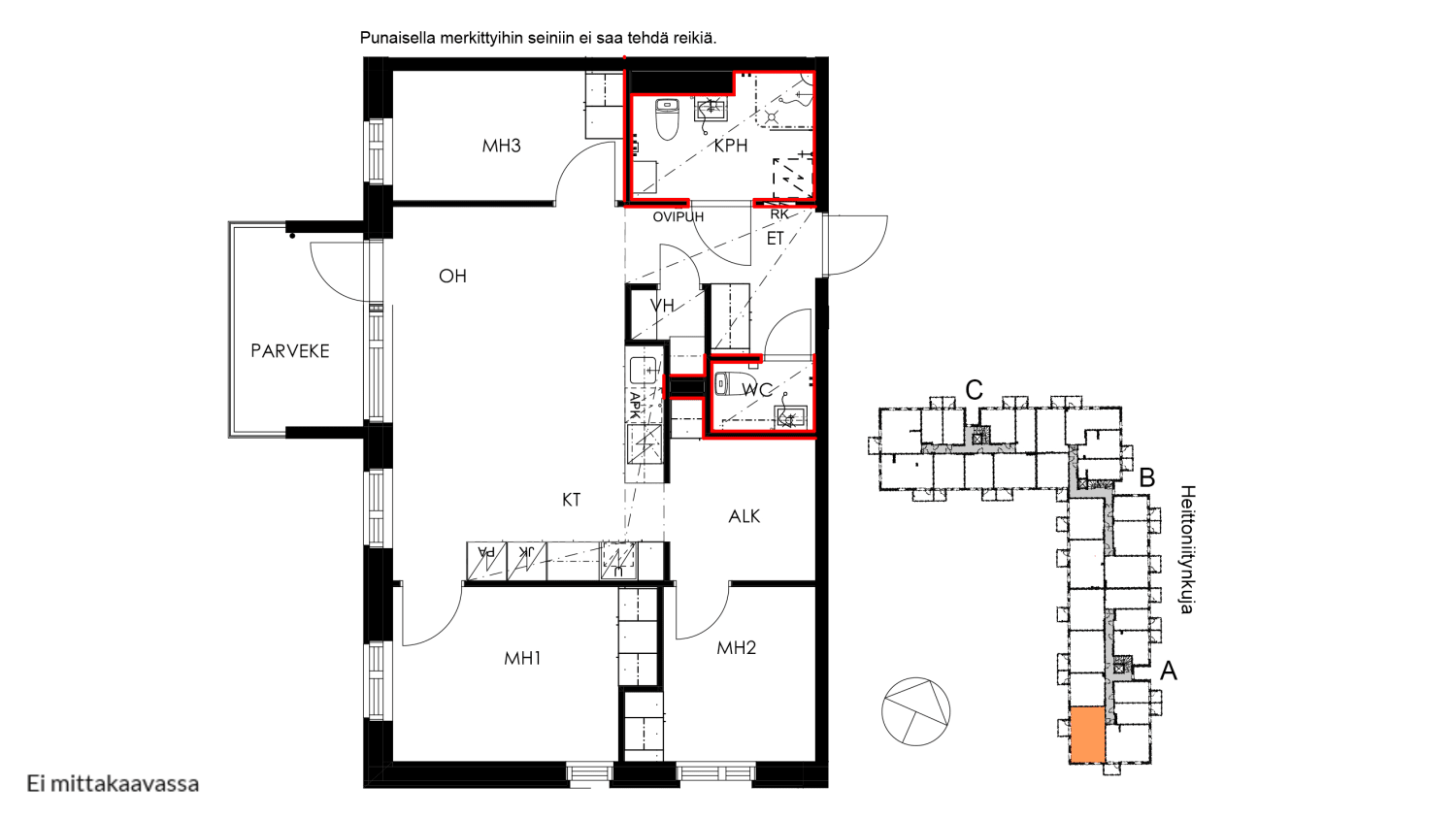
Sympaattisessa neliössä on toimiva tilanjako: reilun kokoinen olohuone, siihen saumattomasti yhdistyvä keittiö, kolme makuuhuonetta ja alkovi. Kesällä voit jatkaa oleskelutilaa omalle, lasitetulle parvekkeelle. Kotiin lisää avaruutta tuo näppärä alkovi, josta voi sisustaa esimerkiksi ruokailu- tai työtilan tai vaikka paikan lapsen leikeille. Toinen wc lisää arjen sujuvuutta ja kylpyhuoneessa on paikka ja liitännät pesukoneellesi. Säilytystilaa on mukavasti sekä eteisessä että kaikissa makuuhuoneissa. Kodin vaaleasävyiset materiaalit toimivat neutraalina pohjana mille tahansa sisustustyylille. Olisiko tämä sinun uusi vuokrakotisi?

Vuokraan sisältyvät

Laajakaista, Telia 50 M
OmaSATO
Talopesula

Lisämaksulla saat

Autopaikka, vapaana 0 kpl
Sähköauton latauspaikka
Talosauna
Lue lisää asiakaseduista

  • Sauna

    Ei

  • Parveke

    Lasitettu parveke

  • TV-järjestelmä

    Kaapeli

  • Asuntoesite

  • Jääkaapin tyyppi

    Jääkaappipakastin

  • Lieden tyyppi

    Induktio

  • Astianpesukone

    Kyllä

  • Pesukoneliitännät

    Tulo- ja poistoliitännät

Vaaleasävyisten asuntojen sisustusmateriaalit ja kalusteet ovat kauniita ja ajattomia. Rauhallinen värimaailma sopii moneen makuun ja avariin, selkeisiin tiloihin sisustat oman kotisi helposti. Asuntojen lattiat ovat harmahtavaa tammilaminaattia ja seinät on maalattu taitetulla valkoisella sävyllä. Keittiökaapistojen ovet ovat valkoista puusyykuvioista mikrolaminaattia ja niissä on rst-vetimet. Ylä- ja alakaappien välinen tila on valkoista Aluco-komposiittilevyä, jossa on aaltoileva kuviointi. Työtaso on harmaata laminaattia ja pesupöytä kuvioitua terästä. Varustukseen kuuluu kalusteuuni ja 2 tai 4-osainen induktiotaso, liesikupu, astianpesukone, jääkaappipakastin tai erillinen jääkaappi ja pakastin. Allaskaapissa on SATOn Seth jäteyksikkö, johon kuuluu kierrätystä helpottavat värilliset jätesangot. Kylpyhuoneen ja wc:n kalusteet ovat SATOlle suunniteltua Kide-mallistoa. Malliston kalusteet on valmistettu Suomessa ja niille on myönnetty sekä Avainlippu että Design from Finland -merkki. Kylpyhuoneen seinät ovat valkoista ja harmaata laattaa, erillisissä wc-tiloissa seinät ovat valkoista laattaa. Lattialaatat ovat harmaita. Pesukoneelle ja kuivausrummulle on oma paikka ja liitännät valmiina. Vuokraan sisältyy Telian 50 megan laajakaistayhteys. Lisänopeuksia ja -palveluita on tilattavissa alennettuun hintaan suoraan Telialta.

  • Vapautuminen

    Vapautumassa 9.7.

  • Varallisuusrajat

    Ei

  • Vuokra

    1 275 €/kk
  • Vuokravakuus

    0 €, (yrityksille min. 1 kk vuokra)

  • Vuokrasopimus

    Toistaiseksi voimassa oleva, minimi asumisaika 12 kk

  • Irtisanomis­mahdollisuus

    12 kk vuokrasopimuksesta tai sopimussakolla aiemmin

  • Kotivakuutus

    Pakollinen, ei sisälly vuokraan

  • Vesimaksu

    Kulutuksen mukaan

  • Sähkömaksu

    Vuokralainen solmii itse sähkösopimuksen.

  • Laajakaista

    Vuokraan sisältyy 50 M laajakaistaliittymä. Voit hankkia lisänopeutta etuhintaan ottamalla yhteyttä operaattoriin Telia.

  • Lemmikit sallittu

    Kyllä

  • Savuton talo

    Kyllä

Vapaita asuntoja tästä talosta

Muut vastaavat asunnot alueelta

Etsitkö kotia tältä alueelta? Tee hakuvahti ja kuule vapautuvista asunnoista ensimmäisenä!

Tee hakuvahti, niin saat ilmoitukset sähköpostiisi, kun toiveitasi vastaavia koteja vapautuu. Voit tehdä yhden tai useamman hakuvahdin ja halutessasi jakaa ne kavereiden kanssa.

Tee hakuvahti